14 WHITE STREET

Tribeca, Manhattan, New York
Multi-Unit Residential - 30,000 sq. ft. (August 2026 Completion)

Team:
Developer: NAVA Architecture and Development
NAVA Team: David Ruff, Anabella Acevedo Peña, Meg Kalinowski, Brendan Willis, Dee Dee Lim, Alberto Martinez, Vincent Parlatore
Architect of Record: KURV Architecture
Exterior Architecture : DXA Studio
Interior Architecture : NAVA Architecture and Development
Structural Engineering : Robert Silman Associates
MEP Engineering : MWB Engineering
Lighting Consultant : LOOP Lighting
General Contractor: Central Interiors
3D Visualization: Moso Studio

Awards:
Best of Design Awards for Unbuilt – Residential (2017)

Located in the TriBeCa East Historic District, 14 White Street is A 30,000 SF mixed-use building clad in a distinctive patinated etched bronze panel. it is a synthesis of unique site considerations and district precedents.

A contemporary metal envelope establishes a dialogue with the neighboring cast iron manufacturing buildings. Individual bronze panels are engraved and acid etched using CNC technologies. The panel angles and the resultant etching vary from window to window, capitalizing on the ease of customization in automated digital fabrication and allowing for smaller apertures at private spaces like bedrooms and bathrooms, and larger at public areas like living and dining rooms. Subtle references to qualities of the district are made throughout the design, deriving the proportions, cadence and textures found on many of its neighbors.

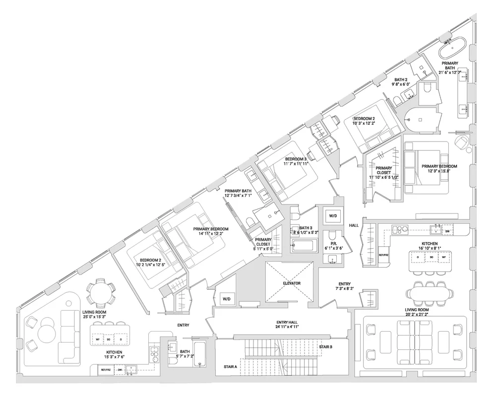
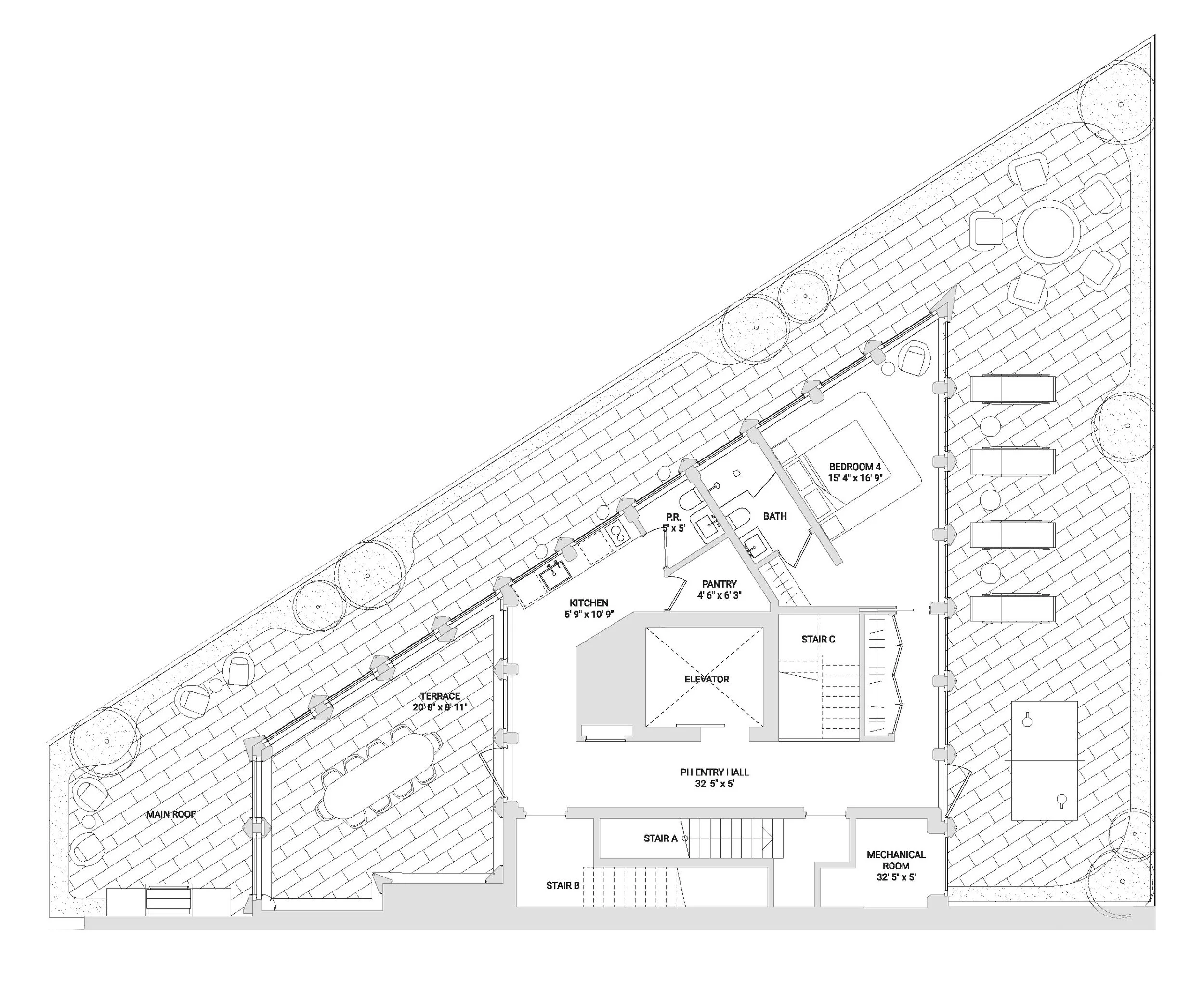
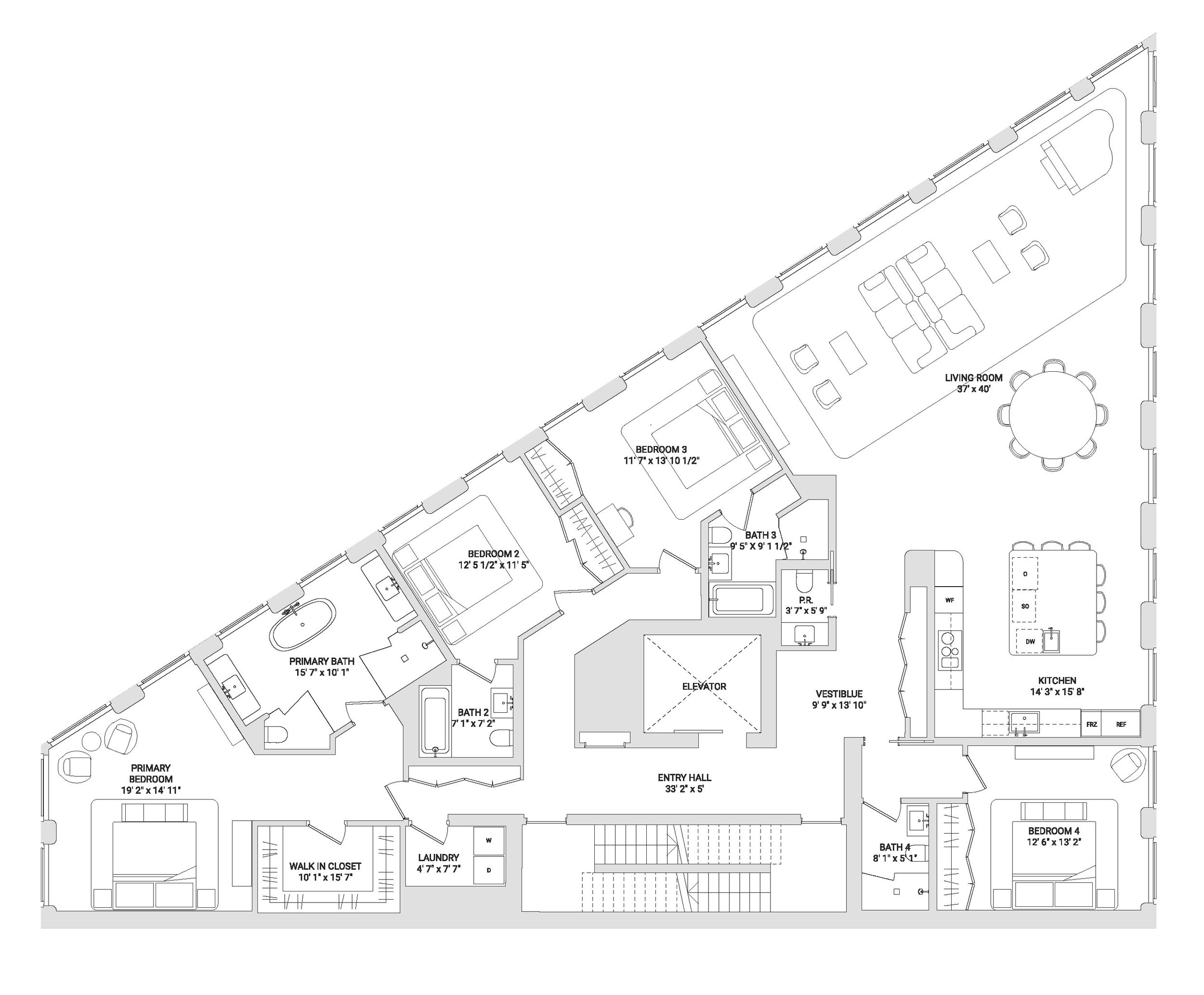
14 White Street is an ultra-efficient passive building, with large high-performance windows, and a hyper continuously insulated rain screen envelope beneath its metal clad exterior. 7 units ranging in size from 1,200 SF two-bedrooms up to 4,000 SF 4 bedrooms will occupy the floors above the 3,000 SF retail space.

Set in the heart of Tribeca, 14 White Street is surrounded by classic cast-iron architecture, cobblestone streets, and converted warehouse lofts that define the neighborhood’s character. This sought-after residential enclave blends historic charm with modern luxury, offering renowned dining, boutique shopping, waterfront parks, and effortless access to the rest of Manhattan.

The project draws from Tribeca’s cast-iron tradition through a contemporary material approach, where structure and façade operate as one. An emphasis on durability, precision, and honest expression ensures long-term performance while reinforcing a clear architectural identity. Quality and value are aligned through what is built and how it is made.

All projects