6 Mulberry

Village of Rhinebeck, Dutchess County, New York. 2021-
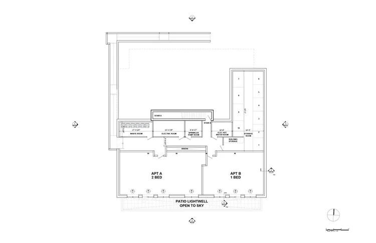
Multi-Family Adaptive Reuse Housing - 18,000 sq. ft.

Developer + Architect: NAVA
Interior Design: NAVA
Landscape Consultant: Michael Boice
Lighting Consultant: Juhee Evans

The Bulkeley Schoolhouse Overlay District represents a new model for how development can emerge through civic process rather than in spite of it. Centered on the adaptive reuse of the historic schoolhouse at 6 Mulberry Street, the project introduces multi-family housing—including a commitment to 10% affordability—within a framework shaped through planning board review, public hearings, and ongoing dialogue with the Village of Rhinebeck.

This work is not simply a proposal, but a negotiated outcome—one that translates community input, regulatory constraints, and housing demand into a new zoning designation. Through this process, the project establishes a path for preservation and growth to coexist, aligning policy with place while carrying the project through the realities of entitlement, financing, and public accountability.

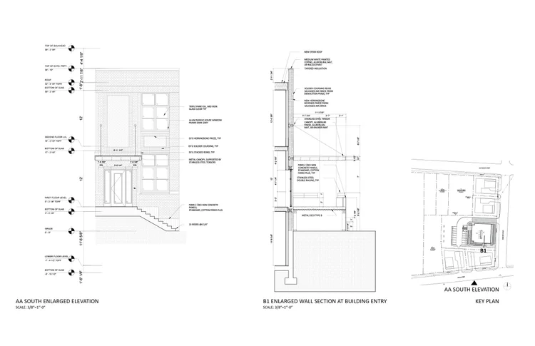
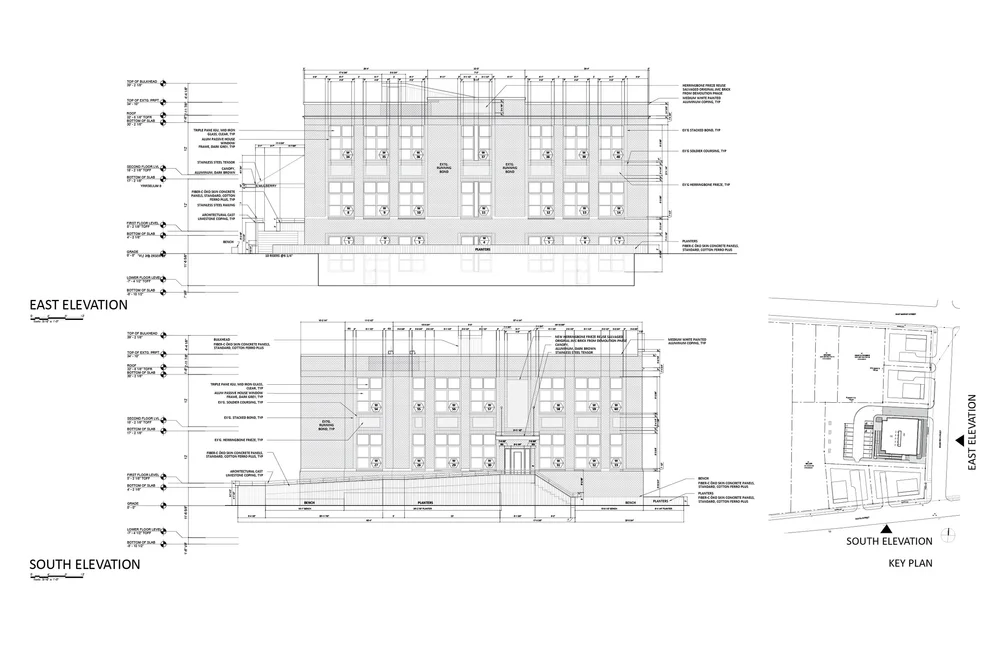
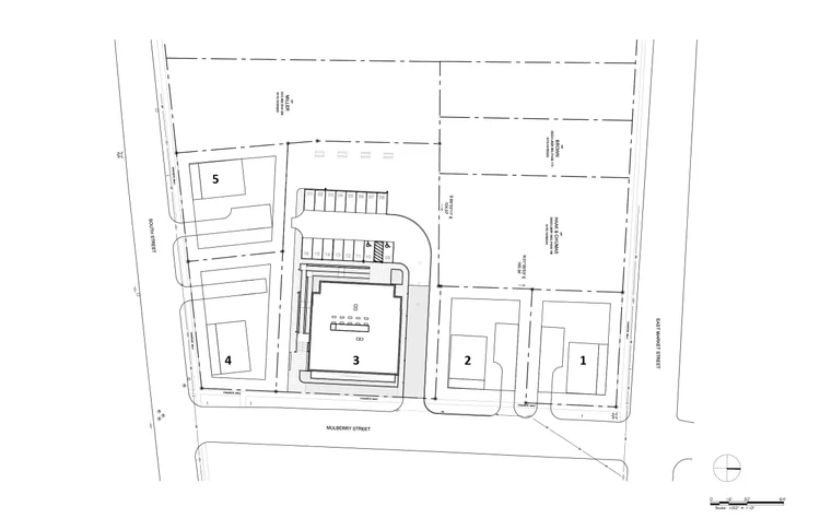
Located within Rhinebeck’s historic core, the site sits within a landscape shaped by early industry, movement, and community life. The Bulkeley Schoolhouse has evolved for nearly two centuries- expanding, adapting, and serving as a civic anchor. Today, it remains embedded within a protected historic district, surrounded by a tight residential fabric.

The project builds from this lineage- treating context not as a constraint, but as a framework for continuity and change.

The design is driven by sensitivity—to the Village, to adjacent neighbors, and to the site itself. The historic structure is preserved as a vessel of memory, while new housing is introduced with restraint-aligned to scale, rhythm, and material context. Landscape and light are integral, reinforcing a biophilic connection to the environment. Performance is elevated through envelope improvements and sustainable strategies, while new housing is delivered in a central, walkable location.

All projects