RHINEBECK TEAHOUSE

Rhinebeck, New York
Accessory Dwelling Unit - 800 sq. ft. (Under Construction)

Team:
Architecture: NAVA
Interiors: NAVA
David Ruff, AIA | Meg Kalinowski, AIA | Anabella Acevedo Peña

Set within a rural landscape in Rhinebeck, the Tea House is conceived as a quiet extension of the property—positioned between cultivated garden and open field. The project draws from Japanese spatial principles and material sensibilities, where restraint, craft, and a close relationship to nature guide the design. A charred wood exterior grounds the building within its surroundings, while a deliberate structural clarity reinforces a sense of permanence and calm.

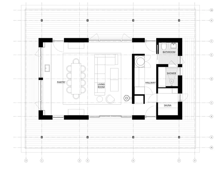
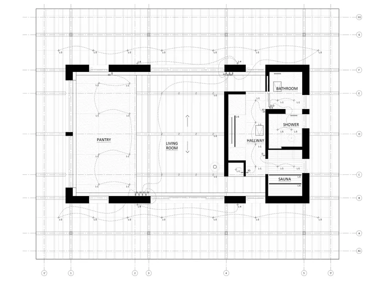
The Tea House brings together a range of domestic and ritualized uses within a compact footprint. Spaces for making, gathering, and rest are interwoven with a spa sequence that includes a steam room, sauna, and changing areas. These functions are organized to support both everyday use and moments of retreat, allowing the building to shift between active and quiet modes throughout the day and across seasons.

Materiality plays a central role in shaping the experience of the Tea House. The use of Yakisugi, a traditional Japanese wood charring, establishes a tactile and visual continuity with the surrounding landscape, while expressing the construction with clarity and restraint. Light moves deliberately through the space, shifting in intensity and direction over the course of the day, reinforcing an awareness of time, season, and atmosphere.

The building’s form emerges from a careful calibration between exposure and protection. Openings are oriented toward the eastern landscape, capturing long views and morning light, while overhangs and enclosure provide shelter and thermal comfort year-round. This balance produces a morphology that is at once open and contained, allowing the interior to remain closely tied to its environment without compromising on performance.

Building section with interactive detail callouts

All projects